|
| 青岛吸引人的标题可让更多的人看您的信息哦装修效果图 |
| 装修面积:480平米 装修费用:半包16万 |
| 装修风格:欧式风格 日期:2016-03-04 |
|
| 效果图上传人员:杜守亮 |
效果图作品描述:
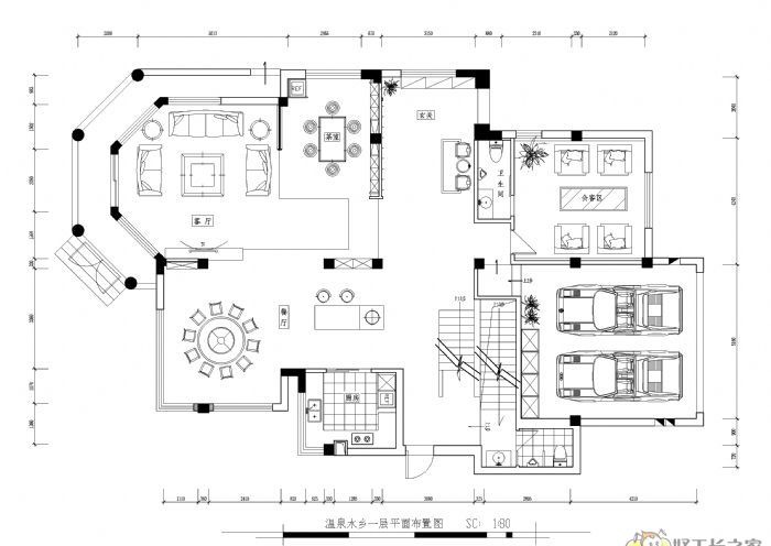
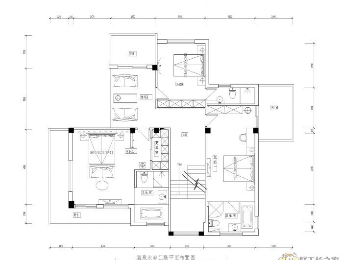
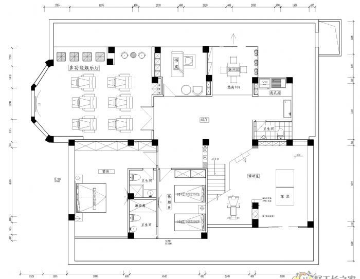
这是一座位于海滨边上,带地下室的别墅,社区环境优美,光线充足。在设计师与业主沟通过程中得知业主夫妇两对这栋别墅功能的要求是一楼空间要尽可能的通透,因此,设计在平面布局上将各功能空间界限模糊处理,使得它们都在不经意间融合为一个整体,亦对空间“开放、包容”的设计中心思想得完美体现。
客厅秉承了大尺度、大空间的理念,重新诠释了“宽敞”的定义。让视线可以任意地穿行,充分享受空间带来的自由感。客厅与餐厅之间通过两阶楼梯、一个黑色的电视背景墙做软性间隔,以及二楼所采用的大面积玻璃落地窗,这些设计增加了空间的连续性,让情绪和空间一起交错流动。整体空间色调柔和、安宁,却给人如同笔锋划过后的深刻印记。
通透的格局让阳光成为空间的另一个主人,自然光与建筑空间的完美融合,缔造出一派宁静的诗意。这样的感觉在空间中弥漫,体验着即熟悉又陌生,即丰富又单纯的气氛。与此同时,在光与影的相互作用下空间的体量的感觉变得愈加清晰。
业主夫妇都是成功人士,所以他们做事更讲究沉稳。在家的需求上,对沉稳也是很看中的。大气舒适的沙发.简洁实用的造型都能将沉稳一一体现。舍弃华而不实的造型和无用的装饰,使沉稳更加突出。用材上讲究的是大块面的处理方法,金刚板、石材、软包及墙纸,无一不增加空间的档次,酒店式的房间处理方式,更是提高整体空间的舒适感。
施工队长:杜队长 电话15192672995
项目名称:美林小镇
面积:480平方米
设计时间:2012.02
竣工时间:2012.20
主要用材:圣象墙纸、L&D瓷砖、中花白大理石、皮革软包等 |
|
 |
|

青岛吸引人的标题可让更多的人看您的信息哦装修效果图图片1 |
|

青岛吸引人的标题可让更多的人看您的信息哦装修效果图图片2 |
|

青岛吸引人的标题可让更多的人看您的信息哦装修效果图图片3 |
|

青岛吸引人的标题可让更多的人看您的信息哦装修效果图图片4 |
|

青岛吸引人的标题可让更多的人看您的信息哦装修效果图图片5 |
|
|
|
|
|
|
 |
| 1、免费量房 2、免费报价 3、免费设计 |
|
|
 |
工长:杜守亮 |
| 青岛市-市北区 |
| 案例:4 |
| 关注:1877 |
| 被预约31次 |
|
普通店铺 |
诚信达人423天 |
店铺未备案 |
装修案例未上传
|
|
预约立即享受优优工长网给您带来的
省钱,省心,放心便捷的服务!
全国统一服务热线:
|
|
|
 |
炜岸城装修效果图 |
| 装修面积:480平米 |
| 装修预算:38.6万元 |
| 装修工长:蒲金福 |
|
 |
大者装修效果图 |
| 装修面积:480平米 |
| 装修预算:26万元 |
| 装修工长:白凯 |
|
|
|