|
| 重庆华宇天宫花城装修效果图 |
| 装修面积:97平米 装修费用:5.8万 |
| 装修风格:中西混搭 日期:2014-05-27 |
|
| 效果图上传人员:何跃 |
| 效果图作品描述:半包花费5.8万 |
|
 |
|

重庆华宇天宫花城装修效果图卧室-龙城装修队 |
|

重庆华宇天宫花城装修效果图厨房-龙城装修队 |
|

重庆华宇天宫花城装修效果图客厅-龙城装修队 |
|

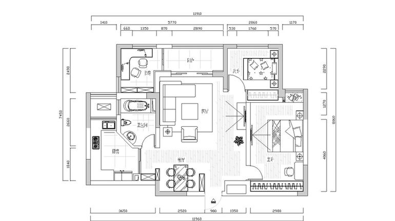
重庆华宇天宫花城装修效果图户型图-龙城装修队 |
|
|
|
|
|
|
 |
| 1、免费量房 2、免费报价 3、免费设计 |
|
|
 |
工长:何跃 |
| 重庆市-渝北区 |
| 案例:2 |
| 关注:1787 |
| 被预约29次 |
|
普通店铺 |
诚信达人2898天 |
店铺已备案 |
装修案例已上传
|
|
预约立即享受优优工长网给您带来的
省钱,省心,放心便捷的服务!
全国统一服务热线:
|
|
|
 |
新干线装修效果图 |
| 装修面积:97平米 |
| 装修预算:45000万元 |
| 装修工长:田文兰 |
|
|
|