|
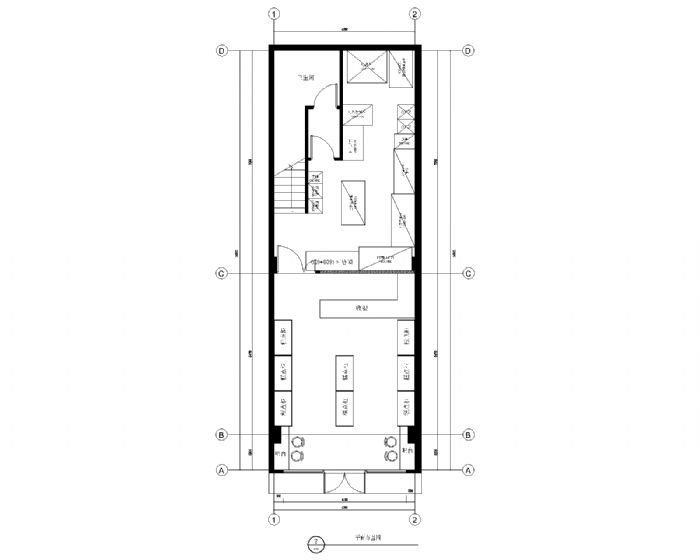
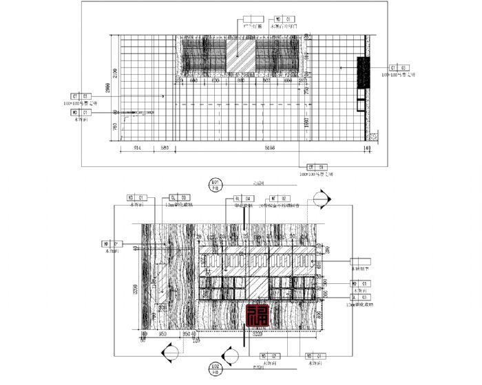
| 上海松江福当当总店装修效果图 |
| 装修面积:80平米 装修费用:全包9万 |
| 装修风格: 日期:2018-12-09 |
|
| 效果图上传人员:潘棋艺 |
| 效果图作品描述:本案例为工装工程,松江荣乐路的福当当糕点总店,全包工程,含水电,地砖,墙砖,墙柜,吊顶,折旧,灯具,门头等。 |
|
 |
|

上海松江福当当总店装修效果图图片2 |
|

上海松江福当当总店装修效果图图片3 |
|

上海松江福当当总店装修效果图图片4 |
|
|
|
|
|
|
 |
| 1、免费量房 2、免费报价 3、免费设计 |
|
|
 |
工长:潘棋艺 |
| 上海市-松江区 |
| 案例:2 |
| 关注:509 |
| 被预约0次 |
|
普通店铺 |
诚信达人0天 |
店铺未备案 |
装修案例未上传
|
|
预约立即享受优优工长网给您带来的
省钱,省心,放心便捷的服务!
全国统一服务热线:
|
|
|
|