|
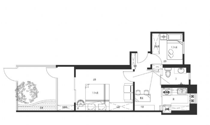
| 沈阳兴隆堡温泉城装修效果图 |
| 装修面积:54平米 装修费用:半包4万 |
| 装修风格:中式风格 日期:2016-03-04 |
|
| 效果图上传人员:赵文明 |
| 效果图作品描述: |
|
 |
|

沈阳兴隆堡温泉城装修效果图 |
|

沈阳兴隆堡温泉城装修效果图图片2 |
|

沈阳兴隆堡温泉城装修效果图图片3 |
|

沈阳兴隆堡温泉城装修效果图图片4 |
|

沈阳兴隆堡温泉城装修效果图图片5 |
|
|
|
|
| 1楼:优优工长网友留言 (2016/3/4 11:31:45) |
| 装修案例全包4万 |
|
|
|
|
 |
| 1、免费量房 2、免费报价 3、免费设计 |
|
|
 |
工长:赵文明 |
| 沈阳市-皇姑区 |
| 案例:2 |
| 关注:1837 |
| 被预约28次 |
|
普通店铺 |
诚信达人2579天 |
店铺已备案 |
装修案例已上传
|
|
预约立即享受优优工长网给您带来的
省钱,省心,放心便捷的服务!
全国统一服务热线:
|
|
|
|