|
| 惠州昶园装修效果图 |
| 装修面积:125平米 装修费用:半包9.8万 |
| 装修风格:现代简约 日期:2021-04-28 |
|
| 效果图上传人员:孟四军 |
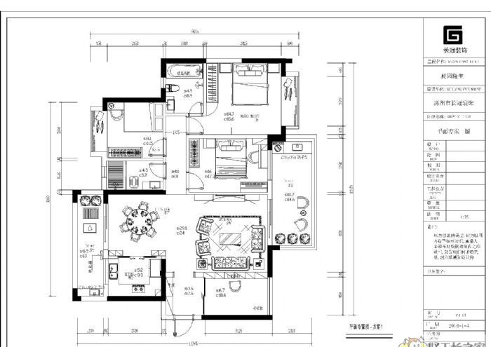
| 效果图作品描述:简洁明快的现代风格现在受人们所喜爱,与现在生活的节奏相呼应,在家可以放松一整天的工作压力,让家成为一个幸福的港湾!本例整体变化不大,利用厨房的墙和沙发背景的墙做了酒柜和书柜,节省了很多空间,现在的房价,能利用多一平方就是赚到! |
|
 |
|

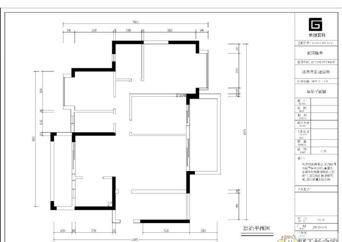
惠州昶园装修效果图原始图 |
|

惠州昶园装修效果图平面布置图 |
|

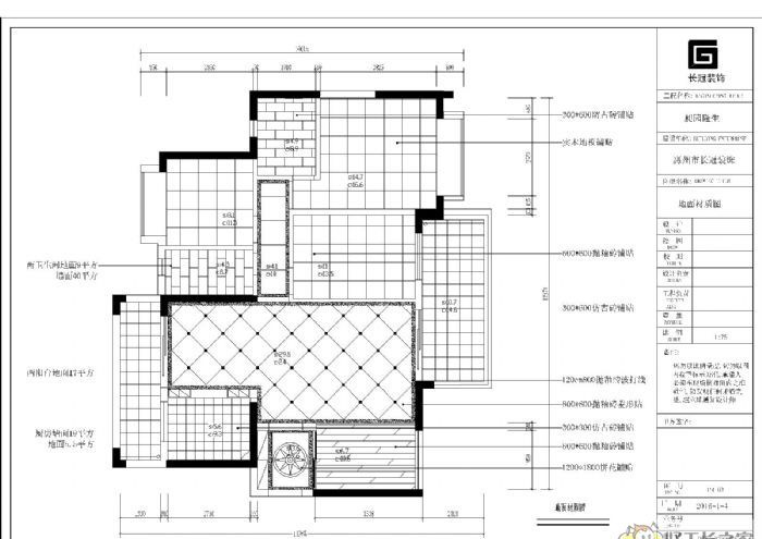
惠州昶园装修效果图地面材质图 |
|

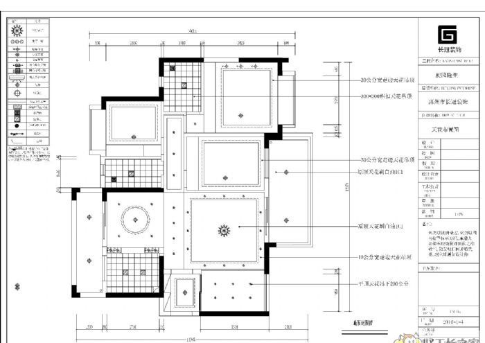
惠州昶园装修效果图天花图 |
|
|
|
|
| 1楼:优优工长网友留言 (2019/2/17 20:45:01) |
| 昶园2套房子要装修,电话18924667778顾先生 |
|
|
|
|
 |
| 1、免费量房 2、免费报价 3、免费设计 |
|
|
 |
工长:孟四军 |
| 惠州市-惠阳区 |
| 案例:18 |
| 关注:3919 |
| 被预约96次 |
|
热榜店铺 |
诚信达人2814天 |
店铺已备案 |
装修案例已上传
|
|
预约立即享受优优工长网给您带来的
省钱,省心,放心便捷的服务!
全国统一服务热线:
|
|
|
 |
昶园装修效果图 |
| 装修面积:125平米 |
| 装修预算:9.8万元 |
| 装修工长:孟四军 |
|
|
|