|
| 惠州花城湾装修效果图 |
| 装修面积:118平米 装修费用:全包12.4万 |
| 装修风格:现代简约 日期:2021-04-28 |
|
| 效果图上传人员:孟四军 |
| 效果图作品描述: |
|
 |
|

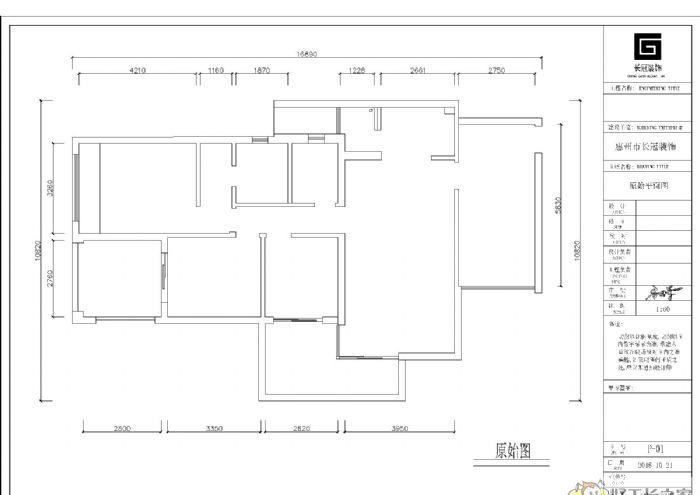
惠州花城湾装修效果图图片1 |
|

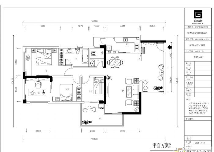
惠州花城湾装修效果图图片2 |
|

惠州花城湾装修效果图图片3 |
|
|
|
|
|
|
 |
| 1、免费量房 2、免费报价 3、免费设计 |
|
|
 |
工长:孟四军 |
| 惠州市-惠阳区 |
| 案例:18 |
| 关注:3918 |
| 被预约96次 |
|
热榜店铺 |
诚信达人2814天 |
店铺已备案 |
装修案例已上传
|
|
预约立即享受优优工长网给您带来的
省钱,省心,放心便捷的服务!
全国统一服务热线:
|
|
|
 |
花城湾装修效果图 |
| 装修面积:118平米 |
| 装修预算:12.4万元 |
| 装修工长:孟四军 |
|
|
|