|
| 宜昌东茗苑小区装修效果图 |
| 装修面积:125平米 装修费用:半包6.3万 |
| 装修风格:美式风格 日期:2018-08-14 |
|
| 效果图上传人员:张邦平 |
效果图作品描述:此装修案例为水悦城附近的二手房重新装。
房屋所在楼层为6楼,没有电梯,所以前期拆除和后期施工的搬运费用比正常新房要高很多,所以整体费用偏高。
业主为70末的已婚家庭,未来十年内没有再换房子或者装修的打算,所以装修风格选择了沉稳的美式(简约)风格。
本设计案例有30多张设计图纸及效果图片,可联系我获取全套资料。 |
|
 |
|

宜昌东茗苑小区装修效果图餐厅 |
|

宜昌东茗苑小区装修效果图厨房 |
|

宜昌东茗苑小区装修效果图主卧 |
|

宜昌东茗苑小区装修效果图卫生间 |
|

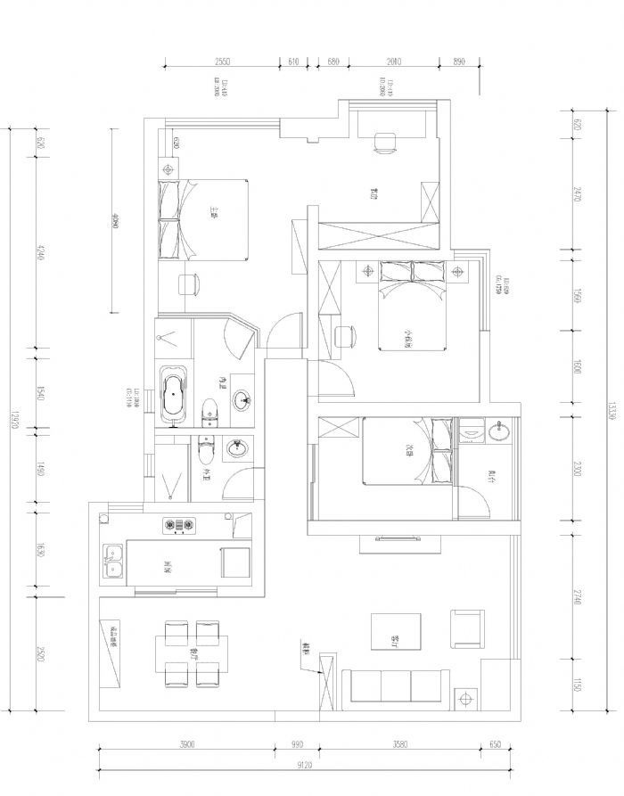
宜昌东茗苑小区装修效果图平面布局 |
|
|
|
|
|
|
 |
| 1、免费量房 2、免费报价 3、免费设计 |
|
|
 |
工长:张邦平 |
| 宜昌市-西陵区 |
| 案例:10 |
| 关注:982 |
| 被预约28次 |
|
普通店铺 |
诚信达人0天 |
店铺未备案 |
装修案例未上传
|
|
预约立即享受优优工长网给您带来的
省钱,省心,放心便捷的服务!
全国统一服务热线:
|
|
|
 |
昶园装修效果图 |
| 装修面积:125平米 |
| 装修预算:9.8万元 |
| 装修工长:孟四军 |
|
|
|